부산광역시 국민안전체험관 건립 설계공모

부산 해운대구 재송동 884-7 일원

참가등록 43건 | 참가승인 43건 | 작품제출 9

개요

Summary
부산광역시 국민안전체험관 건립 설계공모
부산광역시 국민안전체험관 건립 설계공모
위치

부산 해운대구 재송동 884-7 일원

지역·지구

제2종일반주거지역, 가축사육제한구역, 철도보호지구

건축물 용도

문화 및 집회시설, 교육연구시설, 운동시설

층수

지하1층/지상4층(연면적 및 관계법령 등에 맞추어 제안 가능)

대지면적

5,264㎡

연면적

6,000㎡(±5% 범위 내 조정 가능)

총 예정사업비

35,000백만원

예정 공사비

23,564백만원

예정 설계비

1,102,000천원

설계공모 목적

전 연령을 대상으로 종합적이고 차별 없는 안전체험교육 기회를 제공하고, 실효성 있는 안전체험교육 인프라를 확충하기 위하여 부산광역시 해운대구 재송동 884-7번지 일원 내에 부산광역시 국민안전체험관 건립을 위해 설계공모의 방식으로 최적의 사업추진 설계안(설계자)를 선정코자 함

운영위원

운영위원장 여운배, 운영위원 성창욱, 운영위원 강영주, 운영위원 옹시영

발주기관

부산광역시

일정

Schedule
시행공고 2025-09-12 09:00 ~ 2025-09-26 23:59
참가등록 2025-09-25 09:00 ~ 2025-09-26 17:00
등록방법 : 홈페이지 등록
질의접수 2025-09-30 09:00 ~ 2025-10-01 17:00
접수방법 : 홈페이지 접수
질의응답 2025-10-15 17:00 ~ 2025-10-15 18:00
응답방법 : 홈페이지 게재
접수 2025-11-03 09:00 ~ 2025-11-04 17:00
제출방법 : 홈페이지 제출
1차심사 2025-11-17 15:00 ~ 2025-11-17 18:00
장소 : 부산경제진흥원
공모안 심사(공개 진행)
6작품 이상 접수시 심사위원회에서 2차 심사대상 5개 이내 작품 선정
2차심사 2025-11-18 14:00 ~ 2025-11-18 18:00
장소 : 부산경제진흥원
발표 및 심사(공개 진행) 
당선작 및 기타 입상작 선정
당선작발표 2025-11-21 12:00 ~ 2025-11-21 18:00
홈페이지 게재, 당선작 및 기타 입상작에  한하여 개별 통지

보상비

Reward
시상구분 작품수 시상내용 비고
당선작 1작품
  • 설계권 부여
최우수 1작품
  • 40,000,000원
우수 1작품
  • 30,000,000원
장려 1작품
  • 20,000,000원
가작 1작품
  • 10,000,000원

심사위원

Jury
  • 조호제

    (주)라라호호건축사사무소

    주요경력

    부산시 공공건축가,
    프랑스 공인 건축사(HMONP)
    용산초등학교 그린스마트스쿨 리모델링 설계공모 당선,
    망미초등학교 그린스마트스쿨 리모델링 및 교사증축 설계공모 당선,
    사상 숲체험교육관 건립사업 설계공모 당선
    2025 부산다운 건축상 수상(금상)
    2024 부산다운 건축상 수상(장려상)
  • 김경희

    희가 건축사사무소

    주요경력

    2003-2007          ㈜SDpartners 건축사사무소 (서울)
    2007-2017          ㈜해안종합건축사사무소 (서울)
    2017 ~ 현재       희가 건축사사무소 (부산)
    경상남도 공공건축가
    부산대학교 건축학과 겸임교수 
    수정 119안전센터 신축설계
    연산8동 행정복지센터 신축설계
    해동초등학교 그린스마트 리모델링 및 교사증축
    동래원예고등학교 그린스마트 리모델링 설계
    들락날락 어린이복합문화공간 (서구 외 다수) 설계
    당리동 복합센터
    배산평생학습관 리모델링 설계
    부산 EDC 어반테크하우스 조성 설계 등
  • 김홍기

    동명대학교

    주요경력

    학력
    - 일본 교토(京都)대학대학원 건축학전공 공학박사
    - 일본 교토(京都)대학대학원 건축학전공 공학석사
    - 대구대학교 건축공학과 공학사
    
    경력
    - 동명정보대학교 건축학과 교수 (2001. 9 - 현재 )
    - 일본 환경·건축연구소 (2001.6)
    - 제8회 대한민국 병산건축디자인 아카데미 튜터 (1999.7)
    - 일본 교토(京都)대학대학원 공학연구과 티칭 어시스턴트 (1995.12 - 1998.1)
  • 강혜진

    (주)우다건축사사무소

    주요경력

    ys민주역사기념관 당선
    천주교 대구대교구청 당선
    안성맞춤공감센터 우수상 수상 등
  • 유창욱

    캘리토닉

    주요경력

    성균관대학교 건축계획학 박사학위 취득
    동의대학교 겸임교수
    현재 캘리토닉 건축사사무소 대표
    2023년 부산건축가회 '완공건축물 베스트어워드' 수상
    2016년 부산건축가협회가 선정한 부산건축상 ‘신인건축가’ 부문을 수상
    2015년 부산다운 건축상 '은상' 수상
  • 김동준

    건축사사무소 이도

    주요경력

    부산광역시 공공건축가
    광안3동복합동사 설계공모 당선 등
  • 유상훈

    애드아키건축사사무소

    주요경력

    【학력】
    동아대학교 공과대학 건축공학과 (공학사)
    동아대학교 공과대학 산업대학원 (석사)
    
    【경력】
    1988 ~ 2002 / ㈜삼중종합건축사사무소 소장
    1995 ~ 1996 / 아키포럼건축사사무소 소장
    2002 ~ 현재 / 애드아키건축사사무소 대표
    
    【활동실적】
    2006. 03. ~ 2019. 02. / 동의대학교 건축학과 겸임교수
    2015. 11. ~ 2020. 04. / 부산광역시 공공건축가
    2017. 06. ~ 2019. 05. / 부산광역시 건축심의위원
    2017. 11. ~ 2019. 11. / 부산광역시 동래구 건축심의위원
    2019. 02. ~ 2020. 02. / 부산광역시 남구 건축심의위원
    
    【수상실적】
    수정1구역 도시환경정비사업 설계경기당선 (2004)
    영도구청청사증축보건소 현상설계당선 (2008)
    영도구 동삼희망마을 만들기 현상공모당선 (2016)
    영도 해돋이마을 풍경나무 부산다운건축상 공공부문 금상 (2016)
    오륙도 해파랑길관광안내소 증축공사 건축설계제안공모 당선 (2017)
    부산광역시 표창장 (2017)
    영도웰컴센터 부산다운건축상 공공부문 은상 (2018)
    부산광역시 남구 표창장 (2019)
    경남 거제시 아주 청소년문화의집 설계공모 당선 (2020)
    해양수산부 장관 표창장 (국가해양위성센터 건립관련) (2021)

질의응답

Q & A

1. 설계설명서 서식자료 2쪽을 보면 "3. 공간별 면적표"는 전용면적과 공용면적을 구분하여 기재하라고 되어 있습니다.
    설계공모 지침서 23쪽 "1.3 주요 시설개요 및 면적"중 지하층 전체, 지상1층 로비, 지상3층 홀, 지상4층 홀을 공용면적으로 산정하고,
    나머지 실들은 모두 전용면적으로 산정하면 됩니까?
2. 사업대상지와 인접한 재송역 하부의 공영 주차장을 국민안전체험관의 주차장 진출입의 용도로 사용할 수 있습니까?
3. 설계공모 지침서 22쪽에 실별면적은 5% 범위 내에서 조정 가능하다고 되어 있습니다.
    그런데 교통안전체험관과 자연재난안전체험관 외의 개별 체험관들의 지침 면적과 표준모형(안)의 면적 차이가 커서 5% 범위 내에서 표준모형(안)의 적용이 불가능한데,
    지침 면적에 따라 실을 구성하면 됩니까?

답변

1. 설계공모 지침서 23쪽 “1.3 주요시설개요 및 면적” 에 명기되어 있는 주요시설(실별면적)은 ±5% 범위 내에서 설계자의 의도에 따라 조정 가능하며, 공용면적(계단실 및 복도, 로비, 홀 등)은 전체연면적 ±5% 범위 내에서 설계자의 의도에 따라 조정 가능함.
2. 재송역 하부의 공영주차장은 별도의 대지와 시설물이므로 국민안전체험관의 주차장 진출입의 용도로 사용 불가함.
3. 지침서에 첨부되어 있는 표준모형(안)은 단순참고용이며, “주요시설 개요 및 면적표”에 따라 실을 구성하여 제안하면 됨.

건축물의 구조는 반드시 철근콘크리트 구조여야 하나요?(전체 혹은 일부_철골구조, 철골철근구조, 경량철골구조 등의 사용 가능 여부)
 : 기본 설계지침에서 제시하신 공사기간 최소화 및 공사비 절감, 환경친화형 건축자재(재활용 가능 여부) 등에 영향을 미칠 듯 하여 질의합니다.

답변

1. 다양한 구조형식의 제안 가능함. (건축물의 내구성과 공사기간, 공사비 등 종합적인 장단점을 고려하여 합리적인 구조형식을 제안하여야 함)

국가공간정보포털(세움터 건축사지적전산파일)상 지적도(총면적 : 5348.89m2)와 공부상 지적도(총면적 : 5264m2)의 면적이 많이 상이하므로 CAD 대지경계선을 제공가능한지

답변

1. 대지경계선이 반영된 CAD파일 제공.

1. 공모지침서 참고자료 "전시,체험분야 공간구성 표준모형(안)" 중 "2. 교통안전 체험관"의 3,4항 : '선박안전체험장', '자동차안전체험장' 표준모형이 누락된 듯 한데 확인 요청드립니다.
(전시체험장 수는 3실로 표기되어있고, 목록은 5가지로 구성_항목이 2항 다음에 바로 5항으로 표기되어 있습니다)

2. 위 참고자료 중 "7.사회기반안전체험존" 관련 제공된 표준모형은 '미세먼지안전 체험장'인데 '화생방, 민방위, 환경생물 안전체험'에 대한 표준모형은 없는지 확인 부탁드립니다.

답변

1. 지침서에 첨부되어 있는 표준모형(안)은 단순참고용이며, “주요시설 개요 및 면적표”에 따라 실을 구성하여 제안하면 됨. (누락된 표준모형은 없음)
2. 지침서에 첨부되어 있는 표준모형(안)은 단순 참고용이며, “주요시설 개요 및 면적표”에 따라 실을 구성하여 제안하면 됨. (사회기반안전체험존의 표준모형은 없음)

@지침서 P9 설계설명서 “20쪽 이내”라고 명기되어 있으나 별첨1, P2 유의사항 “도면을 포함한 설계내용을 15쪽 이내” 내용이 상이함

@지침서 P23 “1.3주요시설 및 면적” 
    -어린이도서관의 내부 복도 등의 공용면적과 북카페 등은 820m2 내에서 적절히 계획하는 것으로 보면되는가?

답변

1. 별첨1의 2p / 유의사항 2. / 를 “도면을 포함한 설계내용을 20쪽 이내에서 지침서의 작성 규정에 따라 표현한다.” 로 정정함.
2. 설계공모 지침서 23쪽 “1.3 주요시설개요 및 면적” 에 명기되어 있는 주요시설(실별면적)은 ±5% 범위 내에서 설계자의 의도에 따라 조정 가능하며, 공용면적(계단실 및 복도, 로비, 홀 등)은 전체연면적 ±5% 범위 내에서 설계자의 의도에 따라 조정 가능함.

1. 설계지침의 개요와 제공된 CAD 파일상의 대지선상 면적이 서로 불일치합니다.
또한, 제공된 CAD 및 편입필지현황 파일만으로는 정확한 사업대지 경계를 특정하기가 어려운 상황입니다.
이에 따라, 정확한 대지 경계선이 반영된 CAD 파일의 추가 제공이 가능한지 확인 부탁드립니다.
2. 설계공모 지침서 27~28페이지 「나. 배치 및 동선계획, 11) 다수 필지의 대상지는 추후 건축물이 걸치지 않은 경우 합필해야 함으로 이를 고려하여 계획한다.」 라는 문구의 의미가 모호합니다.
해당 조항에서 **‘건축물이 걸치지 않은 경우 합필해야 한다’**는 표현이 구체적으로 어떠한 상황을 의미하는 것인지 정확한 설명을 요청드립니다.
3. 설계공모 지침서 47~65페이지 *참고자료 「전시·체험분야 공간구성 표준모형(안)」*에 제시된 내용과 관련하여, 해당 표준모형의 CAD 파일 제공이 가능한지 확인 부탁드립니다.
4. 사업대지의 일부가 현재 택시 쉼터로 사용되고 있습니다. 해당 택시 쉼터는 추후 다른 장소로 이전되는 것인지, 아니면 기능 자체가 폐지되는 것인지 확인 부탁드립니다.
5. 사업대지는 현재 공원으로 사용되고 있으며, 다수의 수목이 식재되어 있습니다. 해당 수목들을 추후 이식·재사용이 가능한지, 또는 철거 대상인지에 대한 기준과 계획을 확인 부탁드립니다.
6. 설계공모 지침서 47~65페이지 *참고자료 「전시·체험분야 공간구성 표준모형(안)」*에는 아동안전체험관 및 선박 공간구성 표준모형이 포함되어 있지 않습니다.
    해당 실들은 임의로 구성해도 되는 것인지 확인 부탁드립니다.

답변

1. 대지경계선이 반영된 CAD파일 제공.
2. 추후 실시설계 단계에서 사업대지를 합필하겠다는 내용으로, 관련된 행정절차를 고려하여 계획하라는 의미임.
3. 지침서에 첨부되어 있는 표준모형(안)은 단순참고용이며, “주요시설 개요 및 면적표”에 따라 실을 구성하여 제안하면 됨. 
4. 택시종사자 쉼터는 다른장소로 이전 예정임.
5. 수목은 이식할 계획이나 추후 소관 기관과 별도의 협의 예정임.
6. 지침서에 첨부되어 있는 표준모형(안)은 단순참고용이며, “주요시설 개요 및 면적표”에 따라 실을 구성하여 제안하면 됨. 

1. 설계지침서 9p에 ‘표지는 제공된 서식 그대로 사용해야 하고‘ 라는 문구가 있는데 표지 서식은 별첨1의 1p를 그대로 사용하면 되는 것인지?

2. 별첨1의 2p 유의사항 2번에 ‘도면을 포함한 설계내용을 15쪽 이내에서 지침서의 작성 규정에 따라 표현한다.’ 라는 문구가 있는데 설계지침서 9p에는 설계설명서 20쪽 이내라고 되어있음.
    어떤 문구를 따라야 하는지?

3. 사전기획 보고서 및 관련 자료가 있는지? 있다면 공개 가능한지?

4. 지하주차장 계획 가능한지? 가능하다면 지하주차장 예산은 따로 집행 가능한지?

5. 가감차로 필요 여부

6. 택시종사자 쉼터 및 화장실, 창고는 철거예정인지? 아니라면 이설 가능한지?

7. 설계지침서 23p에는 ‘유아 자료실은 온돌필요’라고 명기되어있으나 28p에는 ‘유아어린이자료실은 모든 공간 바닥난방이 가능하도록 계획’이라고 되어있음. 어느 문구를 따라야하는지?

답변

1. 표지는 별첨1의 1p를 사용하면 됨.
2. 별첨1의 2p / 유의사항 2. / 를 “도면을 포함한 설계내용을 20쪽 이내에서 지침서의 작성 규정에 따라 표현한다.” 로 정정함.
3. 관련 자료 제공 불가함.
4. 설계자의 의도에 따라 계획이 가능함 (개별 집행이 불가하며, 공사비 증가요인이 없어야 함)
5. 설계자의 의도에 따라 가감차로 제안 가능함.
6. 택시종사자 쉼터 철거 후 다른장소로 이전 예정임.
7. 바닥난방이 필수사항은 아니며, 설계자의 의도에 따라 제안 가능함.

1.제출물 분량확인요청 
 : 설계지침서 9p, 3.1제출도서 목록상 설계설명서 분량은 20쪽 이내로 표기되어 있으나, [별첨1]설계설명서 서식자료 2p에는 15쪽이내로 표기되어 상이함. 

2.대지경계선 지적확인 및 최종 dwg파일 재송부 요청
 : [별첨2]지적도(국민안전체험관)와 [별첨3-7]국민안전체험관 건립부지 측량조사용역 측량도, [별첨3-8]재송공원주변 지적도 간 지적경계라인이 상이함.  확인요청

3.대상부지내 택시종사자 쉼터(기존시설) 공간의 계획상 고려대상 여부 확인.

4.사업부지내로 차량진입 허용/불가 구간이 설정되어 있는지 여부 확인.

답변

1. 별첨1의 2p / 유의사항 2. / 를 “도면을 포함한 설계내용을 20쪽 이내에서 지침서의 작성 규정에 따라 표현한다.” 로 정정함.
2. 대지경계선이 반영된 CAD파일 제공.
3. 택시종사자 쉼터는 이전 예정이므로 공간 계획상의 고려대상이 아님.
4. 현재 차량 진입 허용/불가 구간에 대한 지정사항은 없음 

1. 1.3 공모개요의 대지면적(5,264㎡)과 제공자료 [별첨3-7]측량조사용역 측량도(5,951.72㎡), [별첨3-8]재송공원주변 지적도(8,518.14㎡)의 대지면적이 모두 다름. 캐드 자료상의 정확한 대지경계선과 대지면적 제공 요청.

2. 층수 및 동수 변경이 가능하다는 것은 지상 4층, 지하 1층 규모 내에서 변경이 가능한 것인지, 아니면 지상 4층보다 높게 계획해도 되는 것인지?

3. 면적표상에 기재되어 있는 각 층별 프로그램 배치에 따르지 않고 자유롭게 배치할 수 있는지?

4. 주차장 면적여부 및 계획지침(지하주차장, 외부주차장)

5. 면적표의 어린이도서관 면적은 820㎡이고 세부 면적을 더하면 800㎡로 오차가 있음.

6. 21p의 위치도에 표시되어 있는 택시종사자 쉼터 또한 계획에서 고려하여야 하는 것인지?

7. 50p의 2.지진체험장(120㎡)이 표준모형구상(안) 면적(75㎡)과 상이함. 기준으로 참고해야하는 면적은 어떤 것인지?

8. 51p의 2.교통안전 체험관의 전시체험장 중 선박안전체험장은 따로 표준 모형 구상안이 없는데 계획하지 않아도 되는 것인지?

9. 53p의 5.보행 및 자동차 안전 체험장(178㎡)이 표준모형구상(안) 면적(75㎡)과 상이함. 기준으로 참고해야하는 면적은 어떤 것인지?

10. 55p의 4.생활안전 체험존의 면적(320㎡)이 제시된 실의 총합계(360㎡)와 상이함. 또한 전시체험장 수 : 3실로 되어 있는데 표준 모형 구상(안)은 5실임.

11. 60p의 5.보건안전체험존(120㎡)이 제시된 실의 총합계(194㎡)와 상이함. 기준으로 참고해야하는 면적은 어떤 것인지?

12. 62p의 6.범죄안전체험존(120㎡)이 제시된 실의 총합계(230㎡)와 상이함. 기준으로 참고해야하는 면적은 어떤 것인지?

12. 65p의 7.사회기반 안전체험존에서 제시된 공간구성 주안점에 공간규모 : 30M X 25M (최소)라고 되어있음. 이 최소 규모를 따르면 기준 면적을 넘어서는데 정해놓은 최소 규모를 무시하고 계획하면 되는 것인지?

13. 제시된 표준 모형 구상(안)은 단순 참고용인 것인지, 단순 참고용이라면 23p의 면적표에서 제시된 면적만 충족하여 계획하면 되는 것인지? 59p에 '최소면적 제안하지 않음'은 면적이 제안된 체험장은 최소면적을 준수해야 하는 것인지? 그렇다면 실면적표와 면적이 상이한데 어떤걸 봐야하는건지?

14. 세부시설면적도 연면적(±5% 범위 내 조정 가능)과 같이 ±5% 이내로 조정이 가능한 것인지?

답변

1. 대지경계선이 반영된 CAD파일 제공.
2. 연면적 및 관계 법령 등에 맞추어, 설계자의 의도에 따라 자유롭게 계획 가능함.
3. 연면적 및 관계 법령 등에 맞추어, 설계자의 의도에 따라 자유롭게 계획 가능함.
4. 연면적 및 관계 법령 등에 맞추어, 설계자의 의도에 따라 자유롭게 계획 가능함.
5. 설계공모 지침서 23쪽 “1.3 주요시설개요 및 면적” 에 명기되어 있는 주요시설(실별면적)은 ±5% 범위 내에서 설계자의 의도에 따라 조정 가능하며, 공용면적(계단실 및 복도, 로비, 홀 등)은 전체연면적 ±5% 범위 내에서 설계자의 의도에 따라 조정 가능함. [20㎡ 는 공용공간으로 해석]
6. 택시종사자 쉼터는 다른장소로 이전 예정임.
7. 지침서에 첨부되어 있는 표준모형(안)은 단순 참고용이며, “주요시설 개요 및 면적표”에 따라 실을 구성하여 제안하면 됨.
8. 선박안전체험장은 별도 구성하지 않아도 되나, 공간구성이 가능하다면 제안 가능.
9. 지침서에 첨부되어 있는 표준모형(안)은 단순 참고용이며, “주요시설 개요 및 면적표”에 따라 실을 구성하여 제안하면 됨.
10. 지침서에 첨부되어 있는 표준모형(안)은 단순 참고용이며, “주요시설 개요 및 면적표”에 따라 실을 구성하여 제안하면 됨.
11. 지침서에 첨부되어 있는 표준모형(안)은 단순 참고용이며, “주요시설 개요 및 면적표”에 따라 실을 구성하여 제안하면 됨.
12. 지침서에 첨부되어 있는 표준모형(안)은 단순 참고용이며, “주요시설 개요 및 면적표”에 따라 실을 구성하여 제안하면 됨.
13. 표준모형(안)은 단순 참고용임, 지침서 23p / 1.3 시설개요 및 면적을 적용
14. 설계공모 지침서 23쪽 “1.3 주요시설개요 및 면적” 에 명기되어 있는 주요시설(실별면적)은 ±5% 범위 내에서 설계자의 의도에 따라 조정 가능하며, 공용면적(계단실 및 복도, 로비, 홀 등)은 전체연면적 ±5% 범위 내에서 설계자의 의도에 따라 조정 가능함. [20㎡ 는 공용공간으로 해석]

질의01. (지침서 2p)
계획대지 면적 및 경계선과 관련해 제공자료 중 [기타]편입필지현황(국민안전체험관), [별첨3-7]국민안전체험관 건립부지 측량조사용역 측량도 및 [별첨3-8]재송공원주변 지적도 등 
모든 자료의 계획대지 면적이 서로 상이 합니다. 또한 필지현황의 지번 면적과 지적도 캐드면적이 서로 상이하며, 총 합산 면적도 상이합니다. 이에 계획대지 면적 5,264㎡에 해당하는 
계획대지 경계선이 포함된 캐드도면 제공 부탁드립니다.

질의02. (지침서 03p)
1.3 공모개요
→ 예정공사비와 관련하여 인테리어 및 안전체험공간 내 컨텐츠 제작비용은 포함되어 있는지 질의합니다.
    또한 공사비에 전기분야는 제외라 되어 있는바 금회 공사분에서 제외하고 작성하면 되는지 질의합니다.

질의03. (지침서 21p)
<1.1 사업목적> 위치도
→ 위치도 상 동해선 선로 하부 행복체육공원은 그대로 존치하는지 아니면 이설 계획이 있는지 질의합니다. 존치 시 금회사업과 연계 계획을 위한 캐드자료 제공 부탁드립니다. 

질의04. (지침서 22p)
1.2 대상지 현황
→ 사업대상지 현황사진 내 ①택시 종사자 쉼터는 철거 대상인지? 
   대상이라면 금회 공사바에 철거비용을 산정해야 하는지 질의합니다. 

질의05. (지침서 23p, 65p)
1.3 주요 시설개요 및 면적
→ 사회기반안전체험관 내부 체험 프로그램 관련하여 주요 시설개요 및 면적(에너지 공급마비, 정보통신사고 체험 교육)의 내용과 참고자료(화생방, 민방위, 환경생물 안전체험)의 
     체험 프로그램이 서로 상이 합니다. 어떤 기준으로 적용하면 되는지 질의합니다.

질의06. (지침서 28p)
나. 배치 및 동선계획
11) 다수 필지인 대상지는 추후 건축물이 걸치지 않은 경우 합필 해야함으로 이를 고려하여 계획한다.
→ 위 문구가 의미하는 바는 무엇인지 질의합니다. 

질의07. (지침서 28p)
다. 평면계획
가) 재송어린이도서관
→ 「안전교육테마존 운영: 독서프로그램과 안전체험관을 연계」안전교육테마공간과 관련한 면적이 주요시설 및 면적에 없습니다. 공용공간 면적을 활용해 계획하면 되는 것 인지 아니면 
       재송어린이도서관 전용면적을 활용해 제안하면 되는 것이지 질의합니다. 

답변

1. 대지경계선이 반영된 CAD파일 제공.
2. 예정공사비에는 인테리어,컨텐츠 제작비용 및 전기시설 공사비는 포함되어 있지 않음
3. 행복체육공원은 존치, 캐드자료 제공 불가.
4. 철거 예정으로 공사비에 포함되어야 함.
5. 지침서 23p / 1.3 시설개요 및 면적 / 의 사회기반안전체험관 (에너지 공급마비, 정보통신사고 체험교육)을 적용.
6. 추후 실시설계 단계에서 사업대지를 합필하겠다는 내용으로, 관련된 행정 절차를 고려하여 계획하라는 의미임.
7. 안전교육테마공간은 공용공간, 전용공간, 외부공간 등을 활용하여 자유롭게 제안 가능.

대상지

Location

공지사항

Notice
부산광역시 국민안전체험관 지침서 수정 안내 2025-09-24

부산광역시 국민안전체험관 설계공모 지침서 상 제출도서 목록, 대상지 현황에 대한 수정사항이 있으니 확인하여 주시기 바랍니다.(설계공모 다운로드에 수정 게시)

 

상세내역

9쪽 - 3.1 제출도서 목록 구적도 추가

22쪽 - 1.2 대상지 현황 필지 누락에 따른 추가(전체 면적은 변동사항 없음)

 

가작


짓다 건축사사무소 조윤경 / 건축사사무소 cmm 방기애
공모이미지
작품명
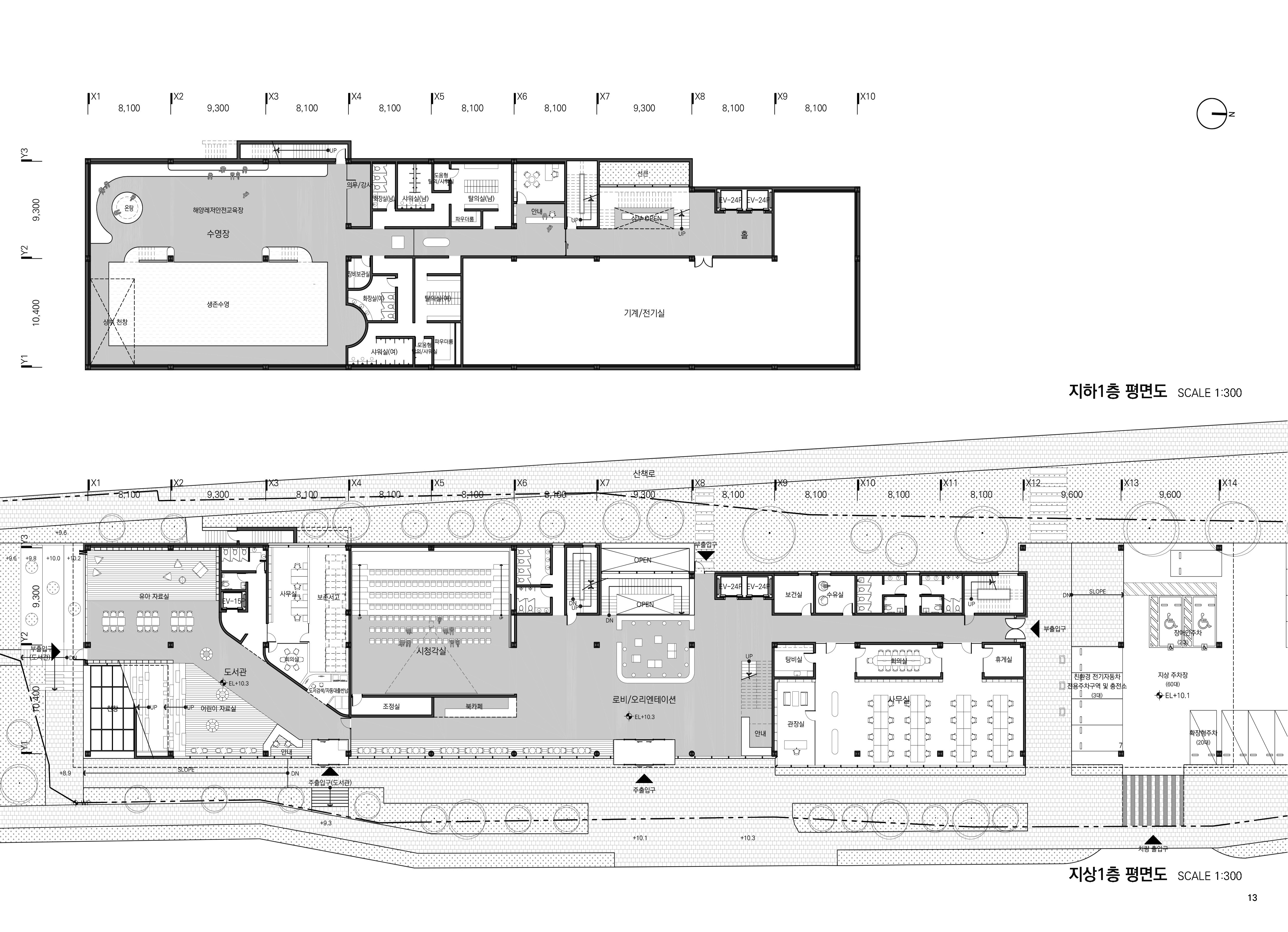
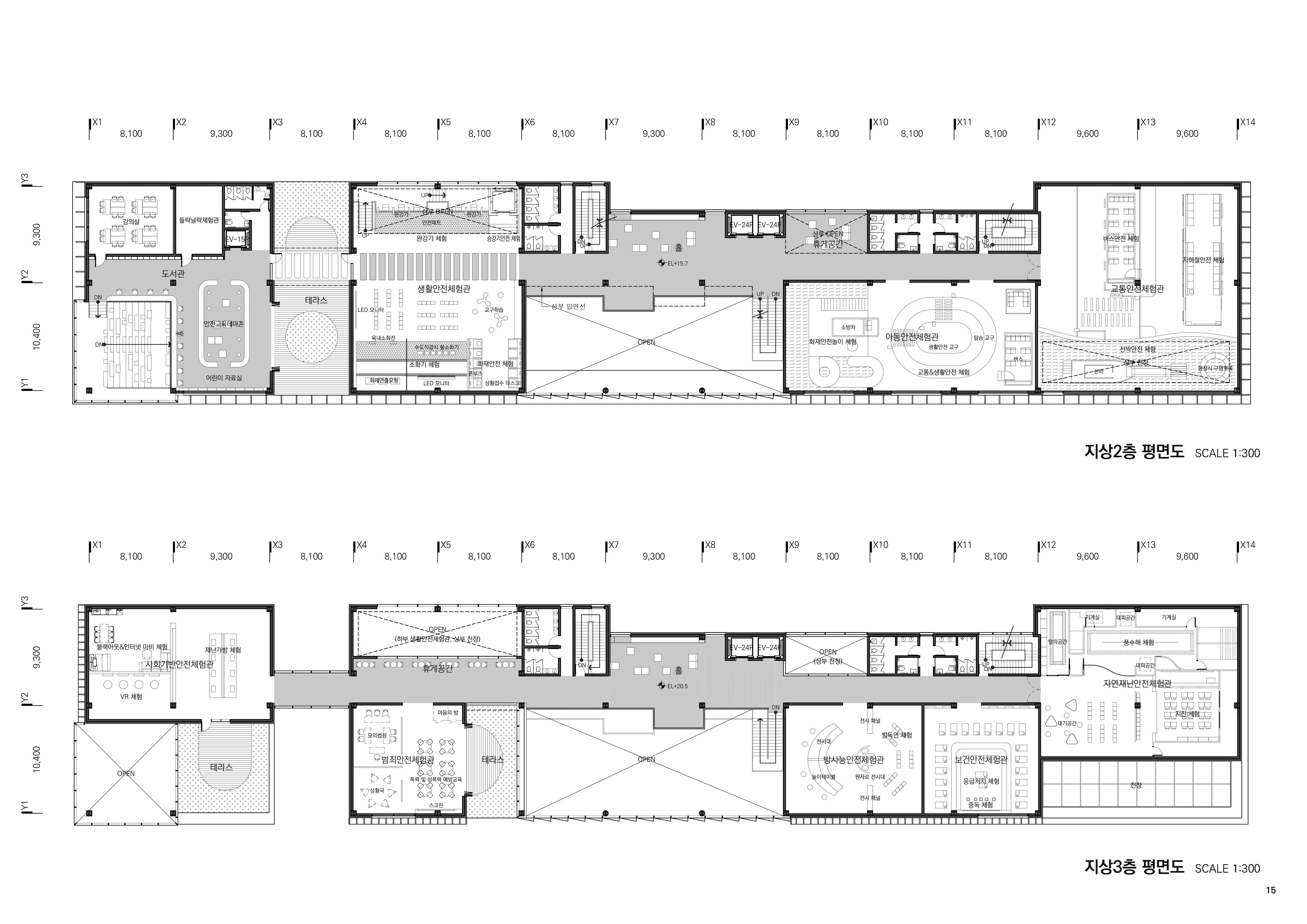
Light Box : 빛을 매개로 한 연속적 흐름의 안전체험관
작품설명
무엇을 ‘경험’하게 하고, 무엇을 ‘남기게’ 하는 공간인가?
안전체험관은 재난을 전시하는 것이 아니라, 경험을 통해 안전의 의미를 배우고 이를 일상으로 확장시키는 학습의 장이다. 
이 프로젝트는 학습 과정 속에서 나타나는 심리적 긴장과 이완, 가상과 현실속 재난에 대한 경계를 건축적으로 해석한다.
따라서 공간은 단순한 시뮬레이션의 나열이 아니라, 몰입된 경험을 위한 가상의 재난 체험공간인  “블랙박스”, 현실감 있는 경험을 위한 일상속 재난을 재현한 공간인 “그레이 박스” 체험을 통해 형성된 긴장감을 이완해주는 심리적 완충공간인 “라이트박스”를 통해 빛을 매개로 한 경험-회복-학습의 연속적 흐름으로 구성된다.
  • 심사위원 조호제

    대지의 동서방향 즉 전면 도로와 후면 철도 사이에 위치한 대지의 특성을 잘 활용하여 개방적으로 제안된 상층부의 프로그램 계획이 돋보입니다. 전용공간과 공용공간의 관계도 적절해 보입니다. 이용자의 시선으로 볼때 풍부하고 쾌적한 상층부 환경이 조성될것 같습니다.
  • 심사위원 김경희

    적절한 분절과 통일감 있는 외관이 우수합니다. 내부 프로그램의 성격과 자연광의 유입에 따라 박스를 구분하고, 그 컨셉이 매스와 입면에서도 연장되어 발현되는 점이 흥미로웠습니다.
    로비의 오리엔테이션공간이 충분히 확보되고, 아트리움을 통해 각층의 홀이 연계되어 공용부의 개방성과체험관의 실내 가변성도 충분히 고려되었습니다.
    어린이도서관은 좌측에 독립적으로 2개층으로 계획되어있으나 수영장을 채광을 위한 부분으로 인하여 1층이 협소한 편인 점이 아쉽고, 지하에 수영장을 계획함으로 인하여 지하공사에 따른 공사비 상승이 다소 우려됩니다.
  • 심사위원 김홍기

    선형 대지의 리듬을 따라 매스를 분절하고 라이트박스로 층간 연계와 채광 확보를 한 부분이 흥미롭습니다. 기존 공원과 연계되며 동선이 다양하고 외관 디자인의 완성도가 강점입니다. 테마별 체험관의 연속성이 뛰어나고 체험의 몰입도가 좋을 것 같습니다. 하지만 체험관이 단순 체험센터가 아니라 공공시설로 기능할 수 있는가라는 측면에서는 아쉬움이 남습니다.
  • 심사위원 강혜진

    수영장을 지하에 두면서 지상의 레이아웃이 명쾌하게 해결된 안 입니다.
    2,3층에 압축적으로 배치된 체험관의 동선과 휴게공간의 배치는 적절하다고 생각되며 
    입면의 적절한 개방감과 구도심을 배려한 스케일의 분절 및 비례 또한 적절해 보입니다.
    다만 북스텝의 방향을 공원으로 돌려 1층 어린이도서관이 공원과의 연결을 적극적으로 고려했다면 더 좋은 안이 되었을 것 같습니다.
  • 심사위원 유창욱

    평면계획의 합리적인 짜임새에 있어서는 눈에 띄는 작품임. 그리고 매스의 분절과 연계 또한 우수한 작품이라 생각이 됨. 하지만 지하에 계획된 수영장에 의해 공간적인 손해 및 공원으로의 조망이 영향을 받고, 3개의 동선이 수영장으로 연계되는 등 많은 부분에서 아쉬움이 발생된다고 판단됨. 상대적으로 비슷하게 배치된  4개의 안보다 수영장을 지하에 계획 시 장점이 잘 보이지 않음
    
    

입상작